Shopping cart
0 items - € 0.00
Facebook Twitter
   

Archeology of the Atlantikwall - Volume 7

Archeology of the Atlantikwall - Volume 7
Author: Chazette, Alain - Destouches, Alain - Paich, Bernard - Reberac, Fabien & a.o.

Language: French

The seventh volume in the series by Alain Chazette c.s. about bunker archeology of the Atlantikwall. This volume describes fire control bunkers of the Kriegsmarine and bunkers with cupolas for infantry observation.

3 copies    € 72.00

€ 72.00

 

3 copies

In shopping cart

Description

P2     Avant-propos
            P3     Sommaire
            P4     Les cloches d'observation d'infanterie
            P15         - Les appareils d'observation        
            P17         - Regelbau 665
            P25         - Regelbau 666
            P29         - Autres Regelbauten à cloche            
            P60     Postes de direction de tir de la Kriegsmarine
            P61         - Les appareils d'observation
            P67        - FuMO 214 Seeart
            P68        - Behelfsbauten
            P74 à 118    - M 120, 132, 150, 157, 162a, 178, 262
            P119         - Sonderkonstruktion
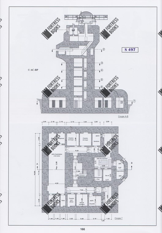
            P123 à 175    - S 100, 414, 446, 487, 497, 515
            P176        - Autres Leitstände
            P182        - S 449
            P184     Postes de direction de tir français    
            P198     Autres postes de direction de tir allemands    
            P210     Leurres et trompe-l'oeil                    
            P233    La propagande du Mur de l'Atlantique                        
            P244    Additif photographique   

Original title Archéologie du Mur de l'Atlantique - Volume 7
Postes de Direction de Tir Kriegsmarine - Observatoires d'Infanterie sous Cloche
Author Chazette, Alain - Destouches, Alain - Paich, Bernard - Reberac, Fabien & a.o.
Languages French
Subject CF - Modern fortifications - 20th century
Period World War Two
Location France
Categories Photobooks, Textual books, Drawings, Plans and maps

Hardcover edition from 2025 (€ 72.00)

BRANDNEW book - illustrated in colour with about 1600 photos, drawings, plans and maps.

Edition 1
Pages 256
Publication date 2025
Bindings Hardcover
Format A4
Price € 72.00

Preview