Winkelwagen
0 stuks - € 0,00
Facebook Twitter
   

Archeologie van de Atlantikwall - Deel 2

Archeologie van de Atlantikwall - Deel 2
Auteur: Chazette, Alain - Destouches, Alain - Tomine, Jacques - Paich, Bernard - Lemonnier Cédric - Laquieze, Jean-François - Sormail, Jory - Mantey, Olivier

Taal: Frans

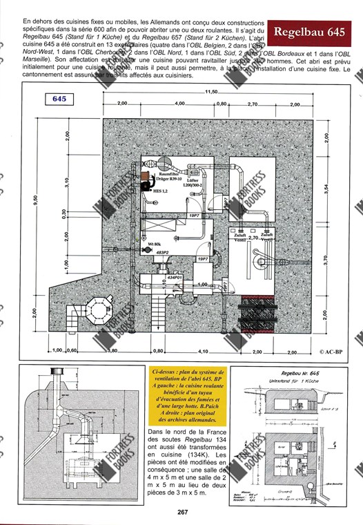
Het tweede deel in de serie van Alain Chazette c.s. over inrichting en uitrusting van bunkers van de Atlantikwall - constructeurs en typologie.

2 exemplaren    € 72,00

€ 72,00

 

2 exemplaren

In winkelwagen

Beschrijving

Originele titel Archéologie du Mur de l'Atlantique - Volume 2
Mobilier et Aménagement des Bunkers - Les Constructeurs - Typologie
Auteur Chazette, Alain - Destouches, Alain - Tomine, Jacques - Paich, Bernard - Lemonnier Cédric - Laquieze, Jean-François - Sormail, Jory - Mantey, Olivier
Talen Frans
Onderwerp CF - Moderne vestingbouw - 20e eeuw
Periode Tweede Wereldoorlog
Locatie Frankrijk
Categrieën Fotoboeken, Tekstuele boeken, Tekeningen, Plattegronden en kaarten

Paperback editie van 2022 (€ 72,00)

SPLINTERNIEUW boek - volledig in kleur geillustreerd!

Druk 1
Pagina's 272
Verschijningsdatum 2022
Bindwijze Paperback
Formaat A4
Prijs € 72,00

Inkijken

Recent bekeken boeken